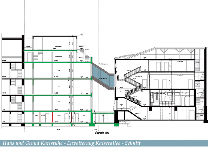
Haus und Grund Karlsruhe, Entwurfsplanung Erweiterung Kaiserallee