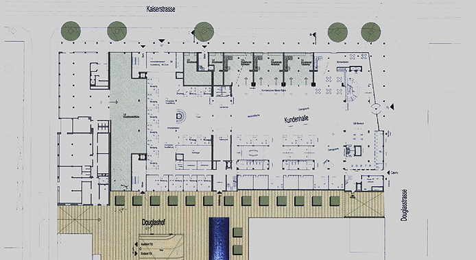
Erweiterung der Hauptstelle der Sparkasse Karlsruhe - Erdgeschoss

Wettbewerb Sparkasse Karlsruhe - Erdgeschoss