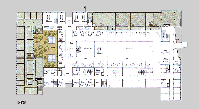
Erweiterung der Hauptstelle der Sparkasse Karlsruhe - 1. Obergeschoss

Wettbewerb Sparkasse Karlsruhe - 1. Obergeschoss